摘要:国内首部地方标准《疏散通道余压监控系统技术规范》发布11月3日,湖北省地方标准《疏散通道余压监控系统技术规范》(标准号:DB42/T 1938—2022)由湖北省市场监管局批准正式发布,将于2023年3月3日正式实施。1 范围本文件规定了疏散通道余压监控系统的部件性能要求、设计、施工、验收等技术要求。本文件适用于湖北省行政区...

11月3日,湖北省地方标准《疏散通道余压监控系统技术规范》(标准号:DB42/T 1938—2022)由湖北省市场监管局批准正式发布,将于2023年3月3日正式实施。

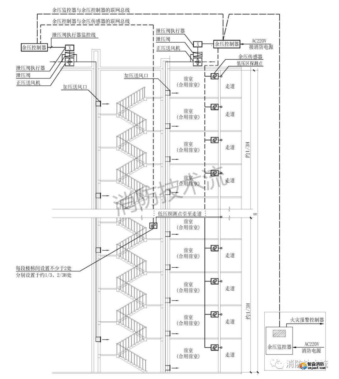
本文件规定了疏散通道余压监控系统的部件性能要求、设计、施工、验收等技术要求。本文件适用于湖北省行政区域内的新建、改建、扩建的各类建筑物的疏散通道余压监控系统的设计、施工、验收,以及运行管理和维护。本文件不涉及疏散通道机械加压送风系统的设计、施工、验收,以及运行管理和维护。下列文件中的内容通过文中的规范性引用而构成本文件必不可少的条款。其中,注日期的引用文件,仅该日期对应的版本适用于本文件;不注日期的引用文件,其最新版本(包括所有的修改单)适用于本文件。GB/T 15211-2013 安全防范报警设备环境适应性要求和试验方法GB/T 15478-2015 压力传感器性能试验方法GB 50166-2019 火灾自动报警系统施工及验收标准设置了机械加压送风系统的由防烟楼梯间、前室(合用前室)、走道组成的空间组合。由余压监控器、余压控制器、余压传感器、泄压阀执行器及其管线组成的系统,通过实时监测疏散通道中的楼梯间、前室(合用前室)、走道之间的余压值,并控制相应设备进行调节,实现相应空间之间的余压值在设定值范围内的功能。设置于消防控制室的设备,实现收集、记录、显示余压控制器、风阀执行器、余压传感器的状态,以及故障信息声光显示报警功能。设置于正压风机控制箱处的设备,实现收集并处理余压传感器的信号,控制泄压阀执行器的开闭,实现疏散通道内的余压值保持在设定值范围内的功能。设置于疏散通道处的设备,实现监测疏散通道内的余压,并将余压值上传给余压控制器的功能。设置在泄压阀上的装置,实现按余压控制器的要求控制泄压阀的开闭动作,并将泄压阀开闭状态信号发送给余压控制器的功能。4.1 疏散通道余压监控系统应根据建筑防烟设计的要求设置,其余压控制应满足以下要求:a) 前室、封闭避难层(间)与走道之间的压差下限最小值为25 Pa、上限最大值为30 Pa;b) 楼梯间与走道之间的压差下限最小为40 Pa、上限最最大值应为50 Pa;c) 当系统余压值超过最大允许压力差时应采取泄压措施。4.2 疏散通道余压监控系统的设置应不影响机械加压送风系统的正常运行。5.1.1 余压监控器应满足GB 16806-2006 中对消防联动控制器的要求。5.1.2 余压监控器应实时显示疏散通道各空间之间的余压值,并存储不少于1000 条最新的记录以供查询。5.1.3 余压监控器与余压控制器之间宜采用标准485 或CAN 总线通讯协议,总线通讯距离不小于500m;余压监控器用于与余压控制器通信的回路不少于2 路,每条回路可连接不少于32 个余压控制器。5.1.4 余压监控器应内置主备电转换功能,备电蓄电池供电时间不应少于0.5 h。5.2.1 余压控制器应满足GB 16806-2006 中对消防联动控制器的要求,一台余压控制器故障不应影响其它余压控制器的正常工作。5.2.2 应能显示其连接的各余压传感器的地址码信息,以及对应的余压值。5.2.3 余压控制器与余压传感器之间宜为二总线通讯,通讯距离不少于500 m,每个余压控制器可连接不少于32 个余压传感器。5.2.4 余压控制器应能控制泄压阀执行器的开闭并接收状态反馈信号,每次动作的响应时间不应大于5 s、完成时间不得大于32 s。5.2.5 余压控制器应能显示余压控制正常、动作中、故障三种工作状态。5.2.6 余压控制器应能显示所接余压传感器安装位置地址码信息、实时余压值。5.2.7 余压控制器应具有自检功能和故障记录功能,并能查询操作故障的历史记录。5.2.8 余压控制器需应能接收正压风机的工作及故障状态反馈信号。5.2.9 余压控制器应能满足在正压风机控制箱内安装的要求。5.3.1 泄压阀执行器应满足GB 16806 中对消防联动控制器的要求。5.3.3 泄压阀执行器材料应符合JB/T 5300 的规定,具备手动控制功能,应采用金属,或者A 级材料。5.3.5 泄压阀执行器应能受控完成开闭动作,并反馈状态信号。5.4.1 余压传感器应满足GB/T 15478-2015 中对差压传感器的要求。5.4.2 余压传感器量程范围应不小于100 Pa,精度等级应不低于1.0,压差值精度±1Pa;5.4.3 余压传感器应能显示安装位置地址码信息、余压实时检测值,余压超范围报警及通讯异常报警。6.1.1 疏散通道余压监控系统设计应符合GB 51251 的规定。6.1.2 应选用同一系统的余压传感器、余压控制器、泄压阀执行器、监控主机及配件等成套定型产品。6.1.3 疏散通道余压监控系统应根据建筑物内机械加压送风系统设置的要求,采用相应的控制方式,确定余压控制器和余压传感器的安装部位、数量与型式。6.1.4 余压传感器的实时工作状态及故障报警等信息应能传到上级余压控制器;余压控制器将相关信号上传至消防控制室内的余压监控器,进行统一监测管理、显示并存储,值班人员可查看实时及历史信息。6.1.5 疏散通道余压监控系统的组成示意如图1:

6.2.1 疏散通道余压监控系统的各部位具体设置要求如下:b) 当余压控制器与加压送风风机控制箱为成套定型产品时,余压控制器应设置于加压送风机控制箱内,否则余压控制器应设置于加压送风机控制箱侧单独的余压控制箱内,并应设置明显标志;c) 余压传感器设置于防烟楼梯间及其前室(或合用前室)。6.2.2 疏散通道余压监控系统应设定正常余压下限值和正常余压上限值,正常余压下限值和正常余压上限值应在调试时设定,以满足余压实际值符合4.1 的要求。6.2.3 疏散通道余压监控系统工作流程应满足如下要求:a) 当开启正压送风系统后,余压传感器开始检测余压,但余压不在正常余压下限设定值和正常余压上限设定值范围之间时,余压传感器发出报警信息,余压控制器发出报警信息;b) 当余压超过正常余压上限设定值时,余压传感器发出报警信息,余压控制器控制相应的泄压阀执行器逐步增大泄压阀开启角度以增加泄压;c) 当余压下降低至正常余压上限设定值后,余压传感器发出信号,余压控制器控制泄压阀执行器保持泄压阀的开启角度来保持余压值稳定正常余压下限设定值和正常余压上限设定值范围之间;d) 若余压值持续降低至低于正常余压下线设定值时,余压传感器发出报警信息,余压控制器发出报警信息,余压控制器控制相应的泄压阀执行器逐步减少泄压阀的开启角度以减少泄压,直到余压达到正常余压上限设定值;e) 重复以上b)、c)、d),直到正压送风系统关闭。f) 以上过程均在余压监控器内记录并实时显示,余压控制器报警时,余压监控器应同步发出报警信号。g) 当正压送风系统未开启时,余压监控器应对余压控制器、泄压阀执行器、余压传感器24 小时实时自动巡检并记录巡检结果。6.2.4 每台加压送风机应设置一台余压控制器,每个泄压阀执行器仅能接受一台余压控制器的监控。余压控制器的设计功能应满足如下要求:a) 余压控制器应具有现场逻辑编程能力,根据现场的楼层情况、风压大小、风量状态,设定正常余压下限值和正常余压上限值;b) 余压控制器应具有开关量输入接口,监测正压分机的工作状态;a) 防烟楼梯间的前室(或合用前室),应每层设置一台余压传感器;b) 每段防烟楼梯间应设置2 台余压传感器,分别设置于约1/3、2/3 高度处;c) 余压传感器应设置在高压区,距顶0.1 m~0.5 m 墙上壁挂安装,其气管座安装于低压区距顶0.1 m~0.5 m 的86 底盒内;6.2.6 疏散通道余压监控系统的线缆的敷设应按火灾自动报警系统的布线要求执行,线缆的选择及敷设应满足以下要求:a) 余压监控器与余压控制器之间接线采用B1 级阻燃NH-RVSP 导线,截面不小于2.5 mm2;b) 余压控制器与余压传感器之间接线采用B1 级阻燃NH-RVSP 导线,截面不小于2.5 mm2;6.2.7 疏散通道余压监控系统的供电按火灾自动报警系统的装置的供电要求执行。6.2.8 疏散通道余压监控系统系统各设备的金属外壳、金属管、槽等应采用等电位连接,接地电阻应满足以下要求:a) 采用共用接地装置时,接地电阻值不应大于1 Ω;b) 采用专用接地装置时,接地电阻值不应大于4 Ω。7.1.1 疏散通道余压监控系统安装应在土建结构主体工程及设备管道安装完成后进行,疏散通道余压监控系统工程施工前应具备下列条件:a) 施工图纸及其它技术文件齐全,并通过设计审查和施工交底;b) 施工方案已经批准,并进行了技术交底;其内容应包括余压监控器、余压控制器、泄压阀执行器、余压传感器等的准备工序、安装施工方法、质量标准以及安全措施等内容;c) 材料、施工队伍、设备等已准备就绪,现场环境已具备正常施工条件。7.1.2 施工单位应向监理单位报备厂家资质,监理单位、施工单位应对产品外观质量、出厂资料、合格证、各项型式检验报告进行检查,符合本文件要求方可进行后续施工。7.1.3 疏散通道余压监控系统的布线宜采用暗敷,并应满足GB 50166-2019 对布线的要求。7.1.4 疏散通道余压监控系统安装完毕后,应采取成品保护措施。7.2.1 余压监控器应在消防控制室台式或壁挂式安装,并与其它设备保持协调一致。a) 余压控制器宜在正压风机控制箱内安装,当安装于正压风机控制箱外时应处于GB/T 15211-2013 对环境类别I的要求;b) 在进行螺丝孔加工和接线时,不应使金属屑和电线头掉入余压控制器的通风孔内;c) 安装和接线应牢固,不应带电状态进行接线、插拔电缆插头等操作;d) 接入余压控制器的输入、输出信号线不应与其他强电或强干扰线路并排布线;e) 余压控制器安装结束后,应清除通风面上的异物,检查通风状态。a) 泄压阀执行器安装前,应检查泄压阀执行器的外观,外表应涂漆,不锈钢和铜阀门不涂漆,阀体上的箭头和文字涂红色漆,表面涂层应光洁、完好,不得有脱落、碰伤及斑痕等缺陷,紧固件不得有松动、损伤等现象,阀上应有阀位标志;b) 泄压阀执行器应垂直安装,阀上箭头方向应与介质流向一致,法兰与管道连接应保证自然同轴,不应产生剪应力,连接螺栓均匀锁紧;d) 泄压阀执行器安装结束后接通电源1 h,检查泄压阀执行器内部温度符合产品说明书的要求;a) 余压传感器应安装于高压区,上缘距顶0.1 m~0.5 m 壁挂安装,采用配套底座直接固定在墙上;b) 余压传感器低压区的气管座宜安装在预埋86 底盒内;c) 余压传感器引压用的气管可根据现场实际情况安装于墙面或顶板下,但不应有U 型路由;d) 气管明敷时应采用金属管保护,穿墙时应预埋金属套管保护;
7.3.1 系统调试前,应通电检测余压监控器、余压控制器、泄压阀执行器、余压传感器,各器件单机功能正常,系统通信功能正常。7.3.2 系统调试前,应检测正压送风系统在泄压阀开启状态下满足余压变化范围的上限要求,检测按以下步骤进行:b) 启动正压风机,关闭疏散通道上所有防火门,检测正压风机正常工作状态下余压值低于4.1 要求的上限最大值则完成检测,若不能满足需向总包单位提出检测结果,待整改完成后重新检测。7.3.3 系统调试前,应检测正压送风系统在泄压阀关闭状态下满足余压变化范围的下限要,检测按以下步骤进行:b) 启动正压风机,关闭疏散通道上所有防火门,检测正压风机正常工作状态下余压值高于4.1 要求的下限最小值则完成检查,若不能满足需向总包单位提出检测结果若不能满足需向总包单位提出检测结果,待整改完成后重新检测;7.3.4 设置泄压阀执行器为受控状态,启动正压风机,人为模拟疏散通道能的余压变化,按6.2.3 条内容进行系统调试,满足余压监控系统正常工作的要求则完成系统调试,否则排除故障重复系统调试过程,直至满足正常工作的要求。8.1.1 疏散通道余压监控系统质量验收分为进场检验、工程验收,验收内容应包括实体验收和资料验收。8.1.2 系统工程质量验收时,应按附录A 的要求检查下列文件及资料:c) 余压传感器、泄压阀执行器、余压控制器、余压监控器等主要材料的产品合格证、产品性能型式检验报告、进场检查验收记录表、进场相关检验报告及出厂检验记录表等;8.2.1 疏散通道余压监控系统进场时应检查系统各部品及配件配置是否齐全、是否匹配,检查余压监控系统各部件有效期内的型式检验报告与现场产品类型是否一致,余压监控器、余压控制器、泄压阀执行器、余压传感器的型号、规格应符合设计和相关标准要求;检验方法:观察、核查质量证明文件(含有效期内型式检验报告)8.2.2 余压传感器产品外观质量、量程范围、过压性能应符合相应国家标准和本规程的规定,应配备计量校准证书。检验方法:核查质量证明文件(含有效期内型式检验报告及复检报告)8.2.3 余压控制器,运行指示是否正常,对各层传感器的采样数据是否上传,如有不显示或是采样故障的,可判定不合格。d) 余压传感器自下而上逐层检查,安装施工应符合7.5 的规定。8.2.5 疏散通道余压监控系统应对系统进行联动性能测试,性能测试应符合6.2.3 的要求。检验方法:核查疏散通道余压监控系统调试报告;人为模拟疏散通道能的余压变化,当余压值达到超压监控值时,余压控制器是否监测到传感器的信号,泄压阀有无泄压动作,监控器能否实时的监控到余压状态等,检验合格则出具疏散通道余压监控系统查验报告。
江苏苏州智淼消防安装工程公司主营:北京消防施工安装,消防工程设计,消防维修改造,消防设备检测,消防验收代办,消防维修保养,探测器清洗,消防检测设备,智慧消防物联网,消防设备销售安装及调试为一体的正规化消防企业。消防改造网址:http://www.zmjaxf.com/;服务热线:4006-598-119