技术指导-管网式七氟丙烷灭火系统设计步骤
管网式七氟
丙烷
灭火系统
设计步骤

管网七氟丙烷灭火系统由七氟丙烷灭火设备、管网、气体灭火控制器、火灾探测器、声光报警器、放气指示灯、紧急启停按钮、外设电源等组成。用于保护经常有人的场所和高精密电子仪器、通讯设备和其它高价值的财产和重要场所,适用于扑救A、 B、C类和E类电气火灾,如通讯机房、高低压配电室、档案室、储能集装箱、工业清洗设备、危险品仓库等易燃易爆场所。
确定设计浓度,防护区层高和防护区个数
1、查看图纸设计说明,图纸气体灭火部分(平面图)防护区个数,层高。
2、图纸未查找到层高,设计浓度等技术参数时,需与客户沟通确定。(计算机房、服务器机房等场所设计浓度选择 8%,柴油发电机房、变配电室设计浓度选择 9%,档案室设计浓度选择 10%)。
1、采用气体灭火系统保护的防护区,其灭火设计用量或惰化设计用量,应根据防护区内可燃物相应的灭火设计浓度或惰化设计浓度经计算确定。
2、有爆炸危险的气体、液体类火灾的防护区,应采用惰化设计浓度;无爆炸危险的气体、液体类火灾和固体类火灾的防护区,应采用灭火设计浓度;几种可燃物共存或混合时,灭火设计浓度或惰化设计浓度,应按其中最大的灭火设计浓度或惰化设计浓度确定。
3、两个或两个以上的防护区采用组合分配系统时,一个组合分配系统所保护的防护区不应超过 8 个;组合分配系统的灭火剂储存量,应按储存量最大的防护区确定;灭火系统的灭火剂储存量,应为防护区的灭火设计用量与储存容器内的灭火剂剩余量和管网内的灭火剂剩余量之和。
4、灭火系统的设计温度,应采用 20℃。
5、同一集流管上的储存容器,其规格、充压压力和充装量应相同。
6、同一防护区,当设计两套或三套管网时,集流管可分别设置,系统启动装置必须共用;各管网上喷头流量均应按同一灭火设计浓度、同一喷放时间进行设计;管网式不应采用四通管件进行分流。
7、喷头的保护高度和保护半径,应符合下列规定:
最大保护高度不宜大于6.5m,最小保护高度不应小于0.3m;喷头安装高度小于1.5m时,保护半径不宜大于4.5m;喷头安装高度不小于1.5m时,保护半径不应大于7.5m。
8、防护区划分应符合下列规定:
防护区宜以单个封闭空间划分;同一区间的吊顶层和地板下需同时保护时,可合为一个防护区;
采用管网灭火系统时,一个防护区的面积不宜大于800平方米,且容积不宜大于3600立方米;采用预置灭火系统时,一个防护区的面积不宜大于 500平方米,且容积不宜大于 1600立方米。
9、防护区应设置泄压口,七氟丙烷灭火系统的泄压口应位于防护区净高的 2/3 以上。宜设在外墙上。泄压口面积按柜式气体灭火系统计算模板进行选型。
10、七氟丙烷灭火系统的灭火设计浓度不应小于灭火浓度的 1.3 倍,惰化设计浓度不应小于惰化浓度的 1.1 倍。
由于不同场景的实际空间情况不一样,因此需要在项目开展前进行相应数据的计算,主要包括了灭火剂用量计算以及压力损失计算。
根据流量决定管径(若最后喷头压力达不到标准,可适当增加管径;若最后管径增大还不满足喷头工作压力要求时,可减少药剂每瓶充装量来增大钢瓶压力)。
防护区灭火设计用量计算完成后,需要确定每个防护区的实际用量。
确定灭火剂瓶组规格、数量,每瓶充装量;确定钢瓶间位置,能否放得下钢瓶。
根据防护区数量,是否采用选择阀,当防护区的数量≥2 时,应采用选择阀,一个系统防护区≤8 个,每个防护区根据集流管的通径大小选择规格相符的选择阀。
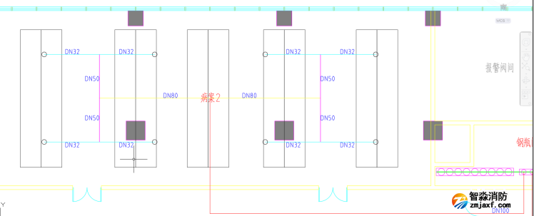
根据防护区和钢瓶间形状及钢瓶数量,初步进行防护区的喷嘴数量和分布位置的确定,要对称均匀分布。预先估计选择喷嘴的型号和数量,喷嘴型号决定最细管路的大小。最后当压力损失计算完成后,计算规定时间内, 喷头能否将药剂喷完。分布管路走势时,注意钢瓶间与防护区的相对位置关系和防护区形状。注意:(钢瓶间与防护区所在楼层关系,相对距离等)。

管网式不应采用四通管件进行分流;根据绘制的草图,确定管径管长, 每一次分流,管径要有序降低,不能一次过大,如:从管径 100mm 直接降至32mm,可以 100—80—65—40—32 或 100—65—40—32,末端管径大小根据所选喷嘴通径选择,压力损失计算选择距离选择阀最远的喷嘴所在管路路线。

管路计算说明:

集流管:{A(红)+B(蓝)+C(黑)组成}
A 部分(红):由瓶组数决定,长度:所需钢瓶数量*0.5m。
B 部分(蓝):由瓶组架决定,长度:可固定为1m
C 部分(黑):取决于驱动瓶数,长度:驱动瓶数量*0.5m。
D 部分(紫):是选择阀到喷嘴所在房顶的高度,选择阀距地面约800mm,根据钢瓶间高度和防护区的相对位置关系可得到4部分长度。
如上表集流管计算:钢瓶数量*0.5m+1m+驱动瓶数量*0.5m=9*0.5+1+3*0.5=7m

图纸上钢瓶间钢瓶,驱动瓶摆放。
70/90/120/钢瓶直径364mm, 150/180 钢瓶直径400mm;瓶组布置排列时
70/90/120/钢瓶中心距440mm,150/180 钢瓶中心距490mm。
根据选择阀大小,选择阀在通径80及以下,各选择阀中心之间可预留约300mm,通径80以上的,中心距可预留约450mm。
当管路降低管径分流时,在模板中应根据管径顺序填写通径、管数、管长。如管路,直到距离选择阀最远的喷嘴。计算管长时,末端连接喷嘴处应有弯头,长度可估算500mm。
核查设计。
填写高度差值;观察喷头工作压力是否满足要求,且大于过程中点压力的一半,如果是则满足要求。
设计立体图,完善图纸。
画出从选择阀出去到防护区的管路分布图(示意图);根据设计的平面图纸标出管径大小,对气瓶间的钢瓶摆放进行核查;填写管网设计技术参数并完善材料表


江苏苏州智淼消防安装工程公司主营:北京消防施工安装,消防工程设计,消防维修改造,消防设备检测,消防验收代办,消防维修保养,探测器清洗,消防检测设备,智慧消防物联网,消防设备销售安装及调试为一体的正规化消防企业。消防改造网址:http://www.zmjaxf.com/;服务热线:4006-598-119








苏公网安备32058102002151号