摘要:消防水箱出水管流量开关设置 流量开关就是监测水流量大小的一个电控装置,当水流流速超过设定的一个临界值以后,流量开关启动。将动作信号传送到消防水泵控制柜,在消防水泵控...
流量开关就是监测水流量大小的一个电控装置,当水流流速超过设定的一个临界值以后,流量开关启动。将动作信号传送到消防水泵控制柜,在消防水泵控制柜里通过继电器启动消防水泵。
∨《消防给水及消火栓系统技术规范》GB50974-2014
∨《自动喷水灭火系统设计规范》GB50084-2017
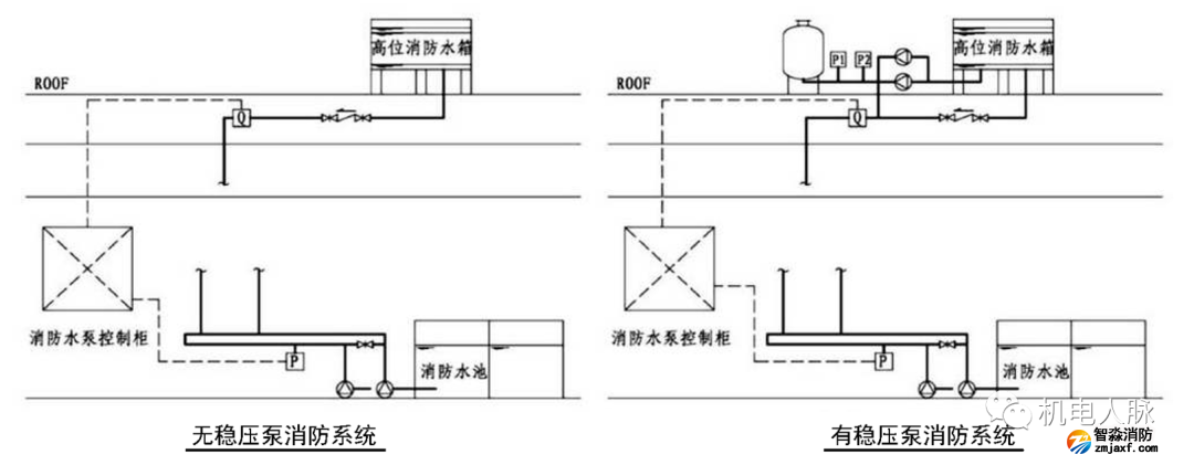
∧圈中的两根红色水管为消防高位水箱的出水管
1、根据《消水规》图示的推荐做法,流量开关的应设置在高位消防水箱稳压管与重力管汇流后的出水干管上;并宜设置在高位消防水箱间内,如设置在水箱间外,应做好防护措施。
∨《消防给水及消火栓系统技术规范图示》15S909
注:在重力流出水管设置止回阀以防止消火栓泵启动后压力大向高位水箱倒灌,而稳压泵出水管是接在止回阀的下方,向管网加压。
2、但也有观点认为设在汇流后的干管上容易受稳压装置流量冲击,报警阈值不好确定,误报率高;设在止回阀后一方面容易被水锤影响,另一方面水流形态改变对流量开关灵敏度也有影响。流量开关设在止回阀上游侧虽然灵敏度有影响,但可以防止因稳压泵启动误报。
1、一组通过直启线接消防水泵控制柜实现启泵功能,另一组通过输入模块、总线接火灾报警控制器(联动型)实现反馈功能。
2、如流量开关为单触点,应加继电器等隔离措施后,再接出两组线;不应将两组线直接接在单触点上。

1、系统泄漏量<动作流量<系统泄露量+1个喷头或消火栓流量。
2、0.1m/s<动作流速<10m/s(通过流速、管径,计算出流量)。
∨《江西省建筑工程消防技术相关问题研讨会会议纪要》赣建设协[2020]15号
4、不会计算设定值是常见错误做法。
1、根据《喷规》的条文解释,喷淋系统无需几种启泵方式全部设置
∨《自动喷水灭火系统设计规范》GB50084-2017
2、老版的《消水规》图示中曾提示消防系统中有稳压泵时流量开关只做报警信号,防止稳压泵启动导致误动作,由压力开关启动消防水泵。在2018版的修订中删除了此处提示。
∨《消防给水及消火栓系统技术规范图示》15S909
3、根据电气《民标》以及各地方规范,两种都要设
∨《民用建筑电气设计标准》GB51348-2019
∨《江苏省建设工程消防设计审查验收工作相关规范、标准技术难点问题解答》
∨《浙江省消防技术规范难点问题操作技术指南》(2020版)
江苏苏州智淼消防安装工程公司主营:北京消防施工安装,消防工程设计,消防维修改造,消防设备检测,消防验收代办,消防维修保养,探测器清洗,消防检测设备,智慧消防物联网,消防设备销售安装及调试为一体的正规化消防企业。消防改造网址:http://www.zmjaxf.com/;服务热线:4006-598-119