工程安装

当前位置:首页>>消防工程>>工程安装

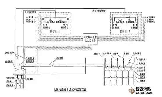
七氟丙烷灭火系统设置要求及图示

作者: 消防改造安装 时间:2019-09-12 16:38:06 来源:http://www.zmjaxf.com/
摘要:设计浓度 七氟丙烷灭火系统 的灭火设计浓度不应小于灭火浓度的1.3倍,惰化设计浓度不应小于惰化浓度的1.1倍 图书、档案、票据和文物资料库等防护区,灭火设计浓度宜采用10% 油浸变...

设计浓度
  七氟丙烷灭火系统的灭火设计浓度不应小于灭火浓度的1.3倍,惰化设计浓度不应小于惰化浓度的1.1倍
  图书、档案、票据和文物资料库等防护区,灭火设计浓度宜采用10%
  油浸变压器室、带油开关的配电室和自备发电机房等防护区,灭火设计浓度宜采用9%
  通讯机房和电子计算机房等防护区,灭火设计浓度宜采用8%
  防护区实际应用的浓度不应大于灭火设计浓度的1.1倍
  设计喷放时间
  在通讯机房和电子计算机房等防护区,设计喷放时间不应大于8s
  在其它防护区,设计喷放时间不应大于10s
  灭火浸渍时间应符合下列规定:
  1.木材、纸张、织物等固体表面火灾,宜采用20min
  2.通讯机房、电子计算机房内的电气设备火灾,应采用5min
  3.其它固体表面火灾,宜采用10min
  4.气体和液体火灾,不应小于1min
  组合分配系统
  两个或两个以上的防护区采用组合分配系统时,一个组合分配系统所保护的防护区不应超过8个
  组合分配系统的灭火剂储存量,应按储存量最大的防护区确定
  灭火系统的灭火剂储存量,应为防护区设计用量与储存容器的剩余量和管网内的剩余量之和
  灭火系统的储存装置72小时内不能重新充装恢复工作的,应按系统原储存量的100%设置备用量
  灭火系统的设计温度,应采用20℃
  同一集流管上的储存容器,其规格、充压压力和充装量应相同
  同一防护区,当设计两套或三套管网时,集流管可分别设置,系统启动装置必须共用。各管网上喷头流量均应按同一灭火设计浓度、同一喷放时间进行设计
  管网上不应采用四通管件进行分流
 
  注:喷头的保护高度和保护半径,应符合下列规定:
  1.最大保护高度不宜大于6.5m
  2.最小保护高度不应小于0.3m
  3.喷头安装高度小于1.5m时,保护半径不宜大于4.5m
  4.喷头安装高度不小于1.5m时,保护半径不应大于7.5m
  喷头宜贴近防护区顶面安装,距顶面的最大距离不宜大于0.5m
  一个防护区设置的预制灭火系统,其装置数量不宜超过10台
  同一防护区内的预制灭火系统装置多于1台时,必须能同时启动,其动作响应时差不得大于2s

江苏苏州智淼消防安装工程公司主营:北京消防施工安装,消防工程设计,消防维修改造,消防设备检测,消防验收代办,消防维修保养,探测器清洗,消防检测设备,智慧消防物联网,消防设备销售安装及调试为一体的正规化消防企业。消防改造网址:http://www.zmjaxf.com/服务热线:4006-598-119

  • 本文网址:http://www.zmjaxf.com/azts/
  • 关键词:
  • 智淼新款一体式二合一烟温试验器及红紫外火焰探测器功能试验器
  • 智淼新款一体式二合一烟温试验器升级版
  • 海湾JB-QB-GST1000ZG火灾报警控制器
  • 海湾J-SAP-M-GST2200ZG手动火灾报警按钮
  • 海湾GST2322ZG输入/输出模块
  • 海湾GST2321ZG输入/输出模块
  • 海湾JTW-ZOM-GST1110ZG点型感温火灾探测器
  • 海湾GST8001ZG电子编码器
  • 海湾GST1200ZG紧急启停按钮
  • 海湾GST1530ZG火灾显示盘

相关阅读

联系我们
Contact
联系我们
我们很想听到您的声音

400电话:4006-598-119

联系电话:18751140119

公司传真:0512-52847706

手机号码:18910580194

客服QQ:1334605518

Email:1334605518@qq.com

地址:江苏省苏州市常熟市黄河路275号城市之星119室

专业提供消防工程施工整体解决方案

全国服务热线:18910580194

立即预约

ABOUT US

关于我们

智淼消防工程技术有限公司

智淼君安(江苏)消防工程技术有限公司,是一家专业从事消防工程设计、消防弱电施工、消防改造、报建、消防维修维保、消防检测的消防企业;销售火灾自动报警系统各种品牌、智慧消防设备、消防物联网系统、一二级消防检测设备仪器、自动灭火系统、室内外消火栓系统、防排烟设施系统、灭火器、防火 了解详情+
智淼消防工程技术有限公司
专业的技术·全新的施工安装服务,咨询热线:18910580194
智淼君安(江苏)消防工程技术有限公司

智淼君安(江苏)消防工程技术有限公司主要业务有火灾报警系统的销售、设计、安装、消防维修及消防工程改造,消防施工,消防工程改造,消防维保,一二级消防检测设备,探测器清洗,消防检测,气体灭火系统安装,电气火灾系统施工安装,消防喷淋水系统安装,防火门系统施工安装等...

+MORE

消防改造Installation and commissioning 消防维修Inspection and maintenance

物业项目业主户内消防改造安全管控要点
物业项目业主户内消防改造安全管控要点

物业项目业主户内消防改造安全管控要点检查了很多高层住宅项目和带底商的项目,消防的一个难点就是:故障点位多!一排查,原因多是业主户内装修,改了(取消)消防。一说整改就是业主户内装修完成了,改造费用高……那么这类消防故障该如何避免或者整改呢?作为物业工作人员,如何在服务业主,满足合理需求的同时,守住消防 [详情]

服务支持Support

消防工程

MORE+ 工程问题/ FAQ

消防电话插孔也要显示位置?
一《火灾探测报警产品的维修保养与报废》GB29837-20135.13 在消防控制室与所有消防电话、电话插孔之间互相呼叫与通话;检查总机是否能显示每部分机或电话插孔的位置,呼叫铃声和通话语音是否清晰;检查群呼、录音等功能是否符合要求。二 实现方法1 消防电话插孔有编码型与非编码型两种。2 编码型消防电话插孔可搭配非编码型...
工程中设置了A型消防应急灯具,水泵房、机房、中控室是否也应用A型灯具?
问题:工程中设置了A型消防应急灯具,其水泵房、机房、中控室消防应急灯具是否也应采用A型灯具?回答:消防应急灯具的设置应按照《应急照明和疏散指示系统技术标准》GB 51309-2018第“3.2灯具”的要求执行。依据山东省建设工程消防设计审查验收疑难解析2.0附GB51309-2018《消防应急照明和疏散指示系统技术标准》第3.2.1条 第...
水锤消除止回阀、水锤消除器、囊式气压水罐的区别及应用?
水锤消除止回阀、水锤消除器、囊式气压水罐的区别及应用?根据《消防给水及消火栓系统技术规范》 GB50974-2014>8.3.3 消防水泵出水管上的止回阀宜采用水锤消除止回阀,当消防水泵供水高度超过24m时,应采用水锤消除器。当消防水泵出水管上设有囊式气压水罐时,可不设水锤消除设施。那么消除止回阀、水锤消除器、囊式气压...
防火卷帘正卷超限、反卷超限、中位的区别及应用?
防火卷帘正卷超限、反卷超限、中位的区别及应用?正卷超限、反卷超限、中位是防火卷帘实现准确控制的重要概念,根据《防火卷帘 第3部分:防火卷帘控制器 》GB14102.3-2024 >术语可知:正卷超限是指由故障引起的防火卷帘到达上限位后不能停止的现象;反卷超限是指由故障引起的防火卷帘到达下限位后不能停止的现象;中位是...
消防水池通气管、呼吸管、溢流水管的区别及应用?
消防水池通气管、呼吸管、溢流水管的区别及应用?通气管、呼吸管、溢流水管是消防水池重要的三条管,根据《消防给水及消火栓系统技术规范》GB50974-2014 >4.3.9 消防水池的出水、排水和水位应符合下列规定:3 消防水池应设置溢流水管和排水设施,并应采用间接排水。4.3.10 消防水池的通气管和呼吸管等应符合下列规定:1...